In un quartiere residenziale tranquillo e comodo a tutti i servizi, proponiamo un attico al secondo e ultimo piano servito da ascensore. Un’abitazione che unisce eleganza, funzionalità e spazi unici, ideale per chi cerca il comfort quotidiano senza rinunciare a quel tocco di esclusività che fa la differenza.
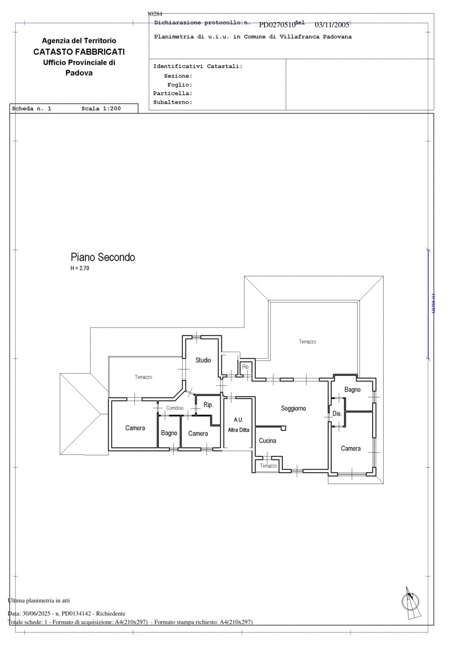
Il cuore della casa è il soggiorno, impreziosito da un raffinato caminetto interno e da un’uscita diretta sul vero protagonista dell’immobile: lo splendido terrazzo coperto di 60 mq, arricchito da un caminetto esterno che lo rende vivibile e accogliente in ogni stagione. Qui ogni momento trova la sua cornice ideale: cene all’aperto, serate conviviali con amici o semplicemente un tramonto da godersi in totale relax. La cucina, si affaccia a sua volta su un terrazzo più raccolto, perfetto per una colazione riservata.
La disposizione interna è studiata per garantire praticità e privacy: da un lato troviamo una camera e un bagno finestrato, dall’altro due ulteriori camere, uno studio, un secondo bagno finestrato e due ripostigli. Una delle stanze e lo studio dispongono entrambi dell’accesso ad un terrazzo di quasi 25 mq, ideale come angolo di quiete personale. L’abitazione è completata da dettagli curati come portoncino blindato, serramenti vetrocamera, tapparelle elettriche e climatizzazione.
Non manca il comfort di un garage quadruplo al piano interrato, una rarità che garantisce spazio e praticità per tutta la famiglia.
Ogni dettaglio è stato pensato per offrire qualità e funzionalità: pavimenti in legno che donano calore a ogni ambiente, riscaldamento autonomo che consente la massima gestione delle spese, spazi ampi che si adattano alle esigenze di chi cerca una casa da vivere davvero.
Se desideri scoprire dal vivo la bellezza di questo attico, contattaci subito per fissare una visita.
Nelle vicinanze si trovano i comuni di Rubano, Veggiano, Teolo, Rovolon, Saccolongo, Abano Terme, Campodoro, Grisignano di Zocco, Vicenza e Padova.
Il cuore della casa è il soggiorno, impreziosito da un raffinato caminetto interno e da un’uscita diretta sul vero protagonista dell’immobile: lo splendido terrazzo coperto di 60 mq, arricchito da un caminetto esterno che lo rende vivibile e accogliente in ogni stagione. Qui ogni momento trova la sua cornice ideale: cene all’aperto, serate conviviali con amici o semplicemente un tramonto da godersi in totale relax. La cucina, si affaccia a sua volta su un terrazzo più raccolto, perfetto per una colazione riservata.
La disposizione interna è studiata per garantire praticità e privacy: da un lato troviamo una camera e un bagno finestrato, dall’altro due ulteriori camere, uno studio, un secondo bagno finestrato e due ripostigli. Una delle stanze e lo studio dispongono entrambi dell’accesso ad un terrazzo di quasi 25 mq, ideale come angolo di quiete personale. L’abitazione è completata da dettagli curati come portoncino blindato, serramenti vetrocamera, tapparelle elettriche e climatizzazione.
Non manca il comfort di un garage quadruplo al piano interrato, una rarità che garantisce spazio e praticità per tutta la famiglia.
Ogni dettaglio è stato pensato per offrire qualità e funzionalità: pavimenti in legno che donano calore a ogni ambiente, riscaldamento autonomo che consente la massima gestione delle spese, spazi ampi che si adattano alle esigenze di chi cerca una casa da vivere davvero.
Se desideri scoprire dal vivo la bellezza di questo attico, contattaci subito per fissare una visita.
Nelle vicinanze si trovano i comuni di Rubano, Veggiano, Teolo, Rovolon, Saccolongo, Abano Terme, Campodoro, Grisignano di Zocco, Vicenza e Padova.
Mappa
Contattaci
INFORMAZIONI EXTRA
AMBIENTI
| Soggiorno | |
| Cucina | |
| Ripostigli | 2 |
| Poggioli/balconi | 3 |
| Giardino condominiale | |
| Garage doppio | 2 |
LIVELLI & COMFORT
| Livelli | Ultimo piano |
| Piano numero | 2 |
| Aria condizionata | |
| Riscaldamento autonomo | |
| Animali ammessi | |
| Ascensore | |
| Numero accessi carrai | 1 |
| Numero portoni | 1 |
| Porta blindata |


