Immagina di svegliarti ogni giorno circondato dalla bellezza senza tempo dei Colli Euganei, in uno dei borghi più ricchi di storia: Arquà Petrarca. Qui, tra natura incontaminata e la quiete delle colline, si trova un’opportunità per dare vita alla casa dei tuoi sogni. Questo immobile, già in fase avanzata di costruzione, offre la possibilità di essere completato secondo il tuo stile e i tuoi desideri, rendendolo un rifugio perfetto per la tua famiglia.
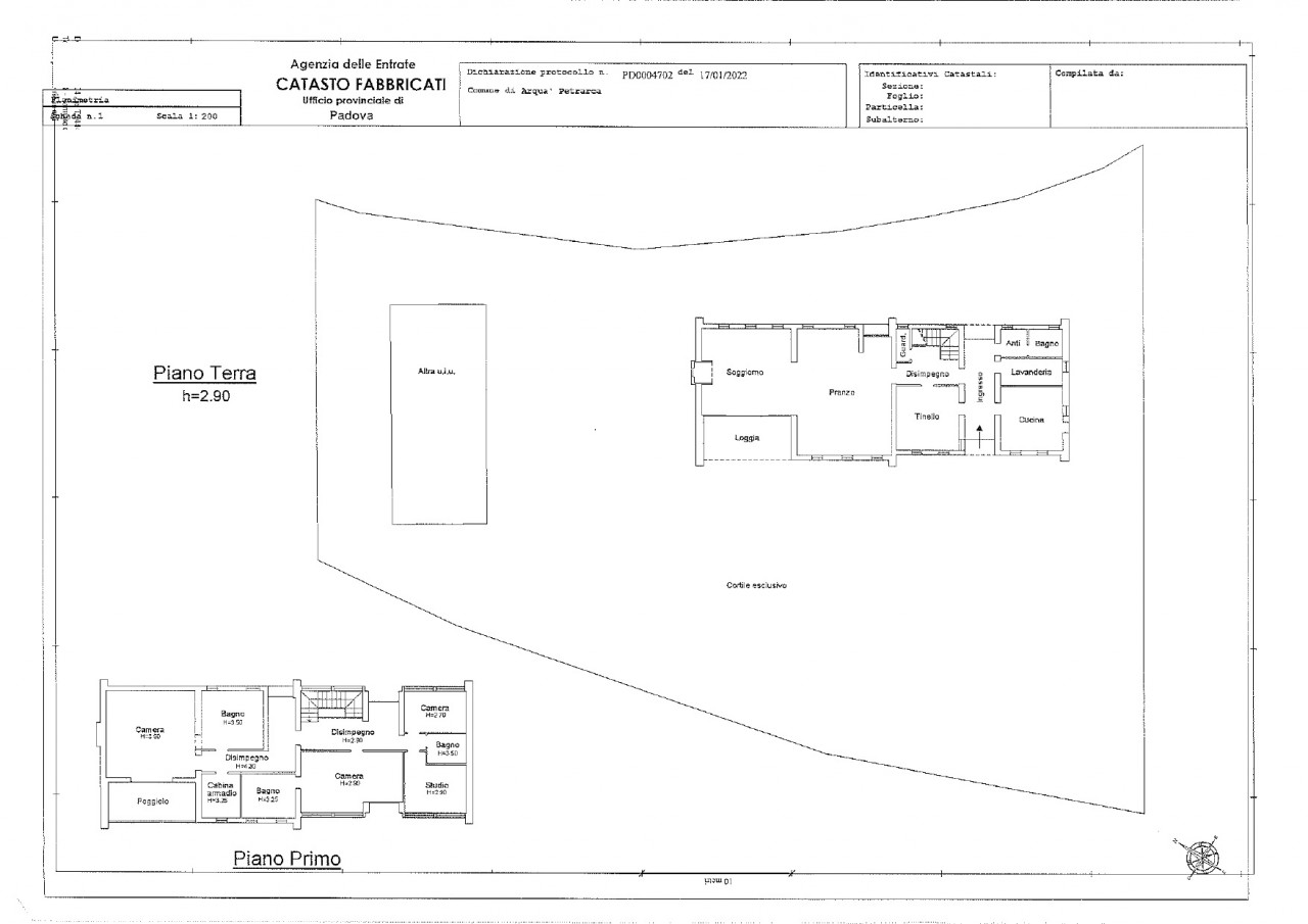
La proprietà si sviluppa su due livelli, pensati per garantire un'esperienza di vita spaziosa e confortevole. Al piano terra, ti accoglie una loggia che introduce a un ampio soggiorno, ideale per accogliere amici e familiari. L'area pranzo, accompagnata da un tinello accogliente, offre lo spazio perfetto per godere di cene conviviali. Una cucina luminosa e ben disposta è pronta a diventare il cuore della casa, mentre un comodo guardaroba e la lavanderia completano la funzionalità di questo piano. A disposizione anche un bagno di servizio per la massima praticità.
Il piano superiore è il luogo ideale per trovare tranquillità e privacy. Le tre camere da letto, pensate per il massimo comfort, offrono tutto lo spazio necessario per il relax, mentre lo studio può diventare il tuo angolo personale di lavoro o creatività. La cabina armadio, spaziosa e funzionale, arricchisce ulteriormente l’area notte, mentre due eleganti bagni aggiungono il tocco finale a questo livello dedicato al benessere della famiglia.
leggermente staccato dal casale si trova l'annesso rustico al grezzo anch'esso, con uno scantinato(ottimo per creare la cantina), un piano terra (per parcheggiare comodamente le auto, e un piano primo(per creare un locale easy o per creare una zona living per il tempo libero.
L’immobile viene offerto nella fase di grezzo avanzato, dandoti l'opportunità di scegliere finiture, materiali e dettagli che riflettano appieno il tuo gusto personale. Che tu preferisca uno stile moderno, classico o rustico, avrai il pieno controllo sulla definizione degli spazi, trasformandoli in un ambiente unico e personale.
Arquà Petrarca, conosciuto come la "Perla dei Colli Euganei", è un luogo di straordinaria bellezza, ricco di storia e tradizione. Vivere qui significa immergersi in un’atmosfera serena e autentica, pur rimanendo a pochi minuti dalle principali vie di comunicazione. Questa proprietà, inserita in un contesto così esclusivo, rappresenta un’opportunità rara: non solo offre uno spazio abitativo di pregio, ma permette anche di far parte di una comunità storica.
L'immobile è poi circondato da circa 16600 mq tra bosco, prato seminativo e ulivi.
Non lasciare che questa occasione ti sfugga. Questo immobile rappresenta una tela bianca pronta per essere trasformata nella casa dei tuoi sogni. Non aspettare oltre: contattaci oggi stesso per organizzare una visita e lasciati ispirare dalle infinite possibilità che questa casa ha da offrire. Non vediamo l'ora di aiutarti a realizzare il tuo progetto!
Vicinanze a Galzignano Terme, Monselice, Baone, Cinto Euganeo, Battaglia Terme, Torreglia, Pernumia, Este, Montegrotto Terme, Solesino, Teolo, Vo', Due Carrare, Lozzo Atestino, Abano Terme, Ospedaletto Euganeo, Rovolon, Saccolongo.
La proprietà si sviluppa su due livelli, pensati per garantire un'esperienza di vita spaziosa e confortevole. Al piano terra, ti accoglie una loggia che introduce a un ampio soggiorno, ideale per accogliere amici e familiari. L'area pranzo, accompagnata da un tinello accogliente, offre lo spazio perfetto per godere di cene conviviali. Una cucina luminosa e ben disposta è pronta a diventare il cuore della casa, mentre un comodo guardaroba e la lavanderia completano la funzionalità di questo piano. A disposizione anche un bagno di servizio per la massima praticità.
Il piano superiore è il luogo ideale per trovare tranquillità e privacy. Le tre camere da letto, pensate per il massimo comfort, offrono tutto lo spazio necessario per il relax, mentre lo studio può diventare il tuo angolo personale di lavoro o creatività. La cabina armadio, spaziosa e funzionale, arricchisce ulteriormente l’area notte, mentre due eleganti bagni aggiungono il tocco finale a questo livello dedicato al benessere della famiglia.
leggermente staccato dal casale si trova l'annesso rustico al grezzo anch'esso, con uno scantinato(ottimo per creare la cantina), un piano terra (per parcheggiare comodamente le auto, e un piano primo(per creare un locale easy o per creare una zona living per il tempo libero.
L’immobile viene offerto nella fase di grezzo avanzato, dandoti l'opportunità di scegliere finiture, materiali e dettagli che riflettano appieno il tuo gusto personale. Che tu preferisca uno stile moderno, classico o rustico, avrai il pieno controllo sulla definizione degli spazi, trasformandoli in un ambiente unico e personale.
Arquà Petrarca, conosciuto come la "Perla dei Colli Euganei", è un luogo di straordinaria bellezza, ricco di storia e tradizione. Vivere qui significa immergersi in un’atmosfera serena e autentica, pur rimanendo a pochi minuti dalle principali vie di comunicazione. Questa proprietà, inserita in un contesto così esclusivo, rappresenta un’opportunità rara: non solo offre uno spazio abitativo di pregio, ma permette anche di far parte di una comunità storica.
L'immobile è poi circondato da circa 16600 mq tra bosco, prato seminativo e ulivi.
Non lasciare che questa occasione ti sfugga. Questo immobile rappresenta una tela bianca pronta per essere trasformata nella casa dei tuoi sogni. Non aspettare oltre: contattaci oggi stesso per organizzare una visita e lasciati ispirare dalle infinite possibilità che questa casa ha da offrire. Non vediamo l'ora di aiutarti a realizzare il tuo progetto!
Vicinanze a Galzignano Terme, Monselice, Baone, Cinto Euganeo, Battaglia Terme, Torreglia, Pernumia, Este, Montegrotto Terme, Solesino, Teolo, Vo', Due Carrare, Lozzo Atestino, Abano Terme, Ospedaletto Euganeo, Rovolon, Saccolongo.
Mappa
Contattaci
INFORMAZIONI EXTRA
AMBIENTI
| Soggiorno | |
| Cucina | |
| Ripostigli | 2 |
| Giardino | |
| Cantina | |
| Posto auto | 4 |
| Lavanderia | |
| Porticato |
LIVELLI & COMFORT
| Livelli | Piano interrato , Piano terra , Primo piano |
| Ingresso indipendente | |
| Numero accessi carrai | 1 |
| Numero portoni | 1 |
